 
							 
							 
							4- bis 5-Raum-Wohnung in Erlabrunn für die Familie oder Senioren-WG
Eckdaten
- Art Terrassenwohnung
- Lage 08359 Breitenbrunn/Erzgebirge
- Miete zzgl. NK 989,00 €
- Nebenkosten 95,00 €
- Wohnfläche ca. 137 m²
- Zimmer 4
- Kellerfläche ca. 5 m²
- Heizungsart Gas-Heizung
- Stellplatztyp Keine Angabe
- Kaution 2 MM
- Haustiere erlaubt ja
- WG geeignet ja
- Stellplatzmiete 15,00 €
- Verfügbar ab sofort
- Zustand Saniert
- Immobilien-ID 124102928
																									
						Andreas Zehnder
											
				
				
				
			Lage
Im schönen, von der Natur umgebenen Steinbachtal und in unmittelbarer Nähe zu den Kliniken Erlabrunn entsteht der „Wohnpark Erlabrunn“ – ein Ort der Ruhe und Erholung für Geist und Seele.
Erlabrunn steht für eine ganzheitliche ärztliche und medizinische Versorgung: Ein gutes Gefühl, sich oder seine Angehörigen zu jeder Zeit gesundheitlich versorgt zu wissen.
Ausstattung
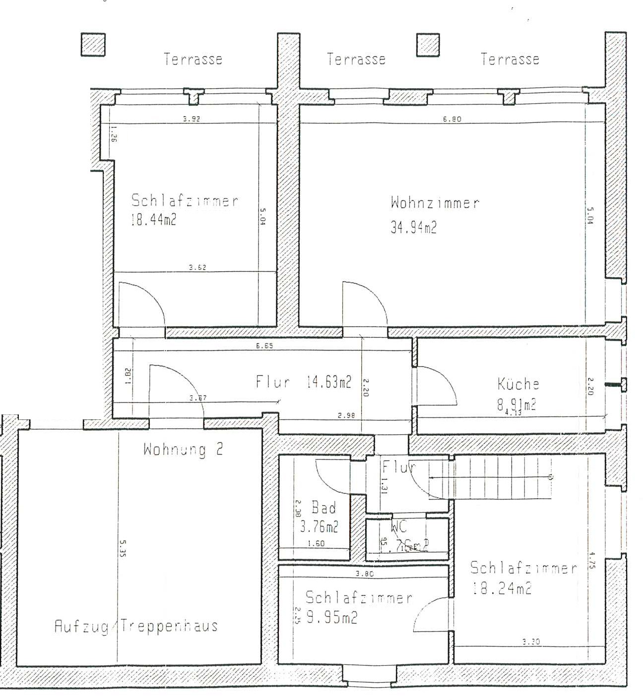
– 4 bis 5 Räume, je nach Wunsch, davon 3 bis 4 Schlafzimmer
– Insgesamt 137 m² Fläche auf einer Ebene
– Fahrstuhl
– Küche, Toilette, Bad, Terrasse
– Große, lichtdurchflutete Räume
– Parkplätze sind ausreichend vorhanden.
																		Keller 
																														Terrasse vorhanden 
																					
					Energieausweisangaben
A+
					A
					B
					C
					D
					E
					F
					G
					H
				- Enerigeausweistyp Verbrauchsausweis
- Energiekennwert 127 KWh(m²*a)
- Energieeffizienzklasse D
- Energie mit Warmwasser ja
- Energieausweis erstellt am 23.04.2021
- Energieausweis gültig bis 22.04.2031
- Heizungsart Gas-Heizung
- Befeuerung / Energieträger Gas
Grundrisse
				Wie können wir Ihnen behilflich sein?
				
					
				
			
			Herzlichen Dank für Ihre Anfrage.
Wir werden diese so schnell wie möglich bearbeiten.
				Wie können wir Ihnen behilflich sein?
				
					
				
			
						
		
 
							 
							